
















← Back to results
Bas de station. Appt 2 pièces duplex. 8 ppl.
Neiges D'or A03 Les Saisies et alentours
8 guests
1 bedroom
2 shower rooms
53 m²
Small residence located at the bottom of the resort, just off the main avenue, close to the Carrets chairlifts and ESF meetings. Sports shop and mini-market nearby.
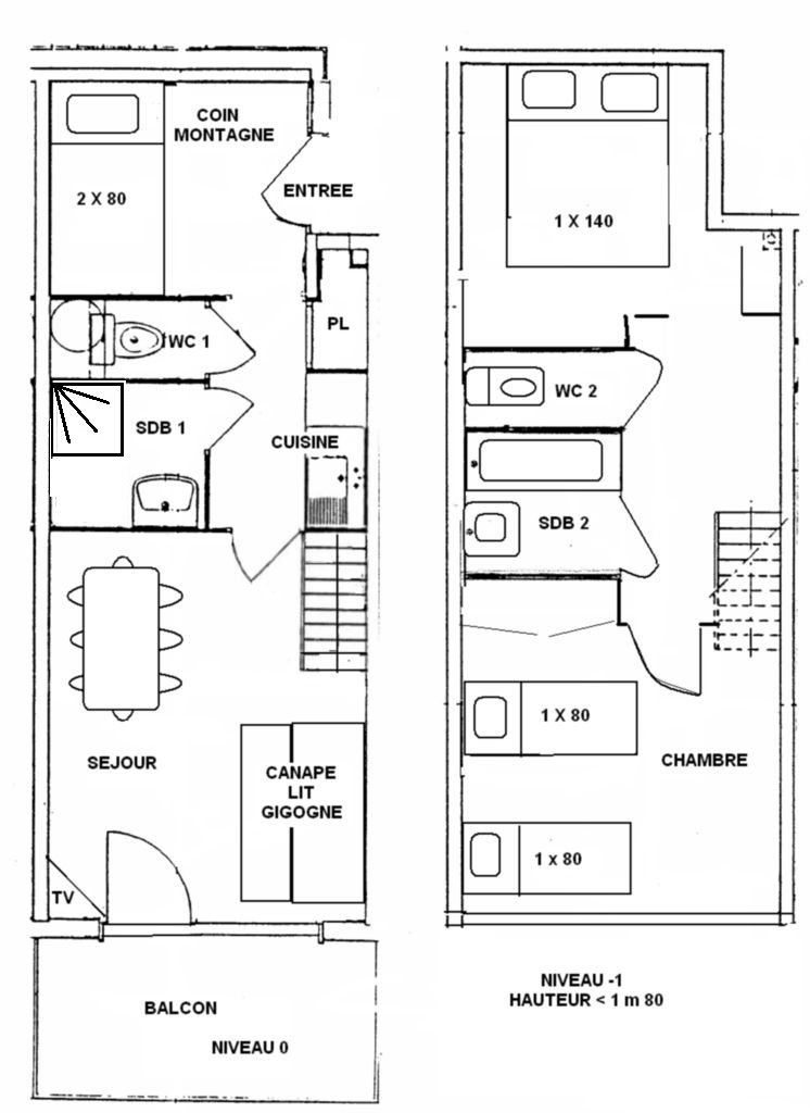
2-room reverse duplex apartment + alcove cabin, located on the raised ground floor of the residence without lift (2 floors to go down), south-facing with balcony.
The apartment has a living room with a 2x80 pull-out sofa bed and an open-plan fitted kitchenette, an alcove with 2x90 bunk beds (NB: the top bunk bed is not suitable for children under 6), a shower room and separate WC on level 0. Level -1 has a bedroom with 2 80cm beds, a blind cabin with a 140cm bed, a bathroom and separate WC.
Please note that the maximum height on level -1 is 1m80.
2-room reverse duplex apartment + alcove cabin, located on the raised ground floor of the residence without lift (2 floors to go down), south-facing with balcony.
The apartment has a living room with a 2x80 pull-out sofa bed and an open-plan fitted kitchenette, an alcove with 2x90 bunk beds (NB: the top bunk bed is not suitable for children under 6), a shower room and separate WC on level 0. Level -1 has a bedroom with 2 80cm beds, a blind cabin with a 140cm bed, a bathroom and separate WC.
Please note that the maximum height on level -1 is 1m80.
This apartment is classified as 2-star furnished holiday accommodation.
Housekeeping category: H
Still have a question? Check out our FAQ
Housekeeping category: H
Still have a question? Check out our FAQ
Show more
Show less
Amenities

Virtual tour
426.93
0
More Details
- Oven and Microwave
- Hotplates
- Raclette machine
- Vacuum cleaner
- Coffee machine
- Oven
- Dishwasher
- Fridge
Location
Our other accommodations