










← Retour aux résultats
Centre station. Appt Studio. 3 pers.
Village Bat 2 215 Les Saisies et alentours
3 voyageurs
studio
1 salle d'eau
23 m²
Résidence proche centre station, proche des commerces.
La résidence est exposée sud, face au Mont Bisanne
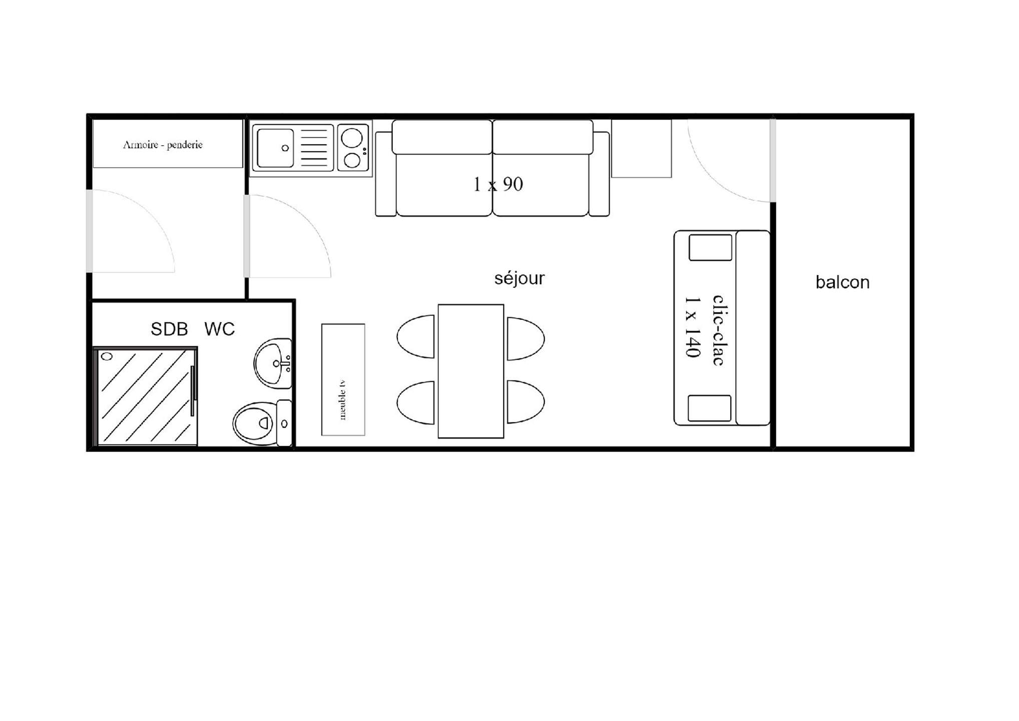
Appartement studio situé au 1er étage de la résidence (pas d'étage à monter), orienté sud, avec balcon.
L'appartement se compose d'une kitchenette équipée, d'un séjour avec canapé 140 et d'un lit en 80, d'une salle d'eau avec WC non séparé.
La résidence est exposée sud, face au Mont Bisanne
Appartement studio situé au 1er étage de la résidence (pas d'étage à monter), orienté sud, avec balcon.
L'appartement se compose d'une kitchenette équipée, d'un séjour avec canapé 140 et d'un lit en 80, d'une salle d'eau avec WC non séparé.
Voir plus
Voir moins
Équipements

Visite virtuelle
188.32
0
Plus de détails
- Four combiné micro-ondes
- Plaque de cuisson
- Cafetière Senseo
- Appareil à raclette
- Aspirateur
- Cafetière électrique
- Lave-vaisselle
- Réfrigérateur table top
- Grille-pain
Localisation
Nos autres logements